Volvo Facility
Commercial
2023
As a Junior Designer at R.H Carter Architects, I played a crucial role in developing Drawing Sets for automotive facilities, including site plans, floor layouts, elevations and 3D renderings. I also tackled the design of the VRSE (Volvo Retail Sustainability Experience) Information Stand, replacing the original ”Ice Berg” Sculpture from Sweden within the Volvo Program.




VRSE Stand Proposal
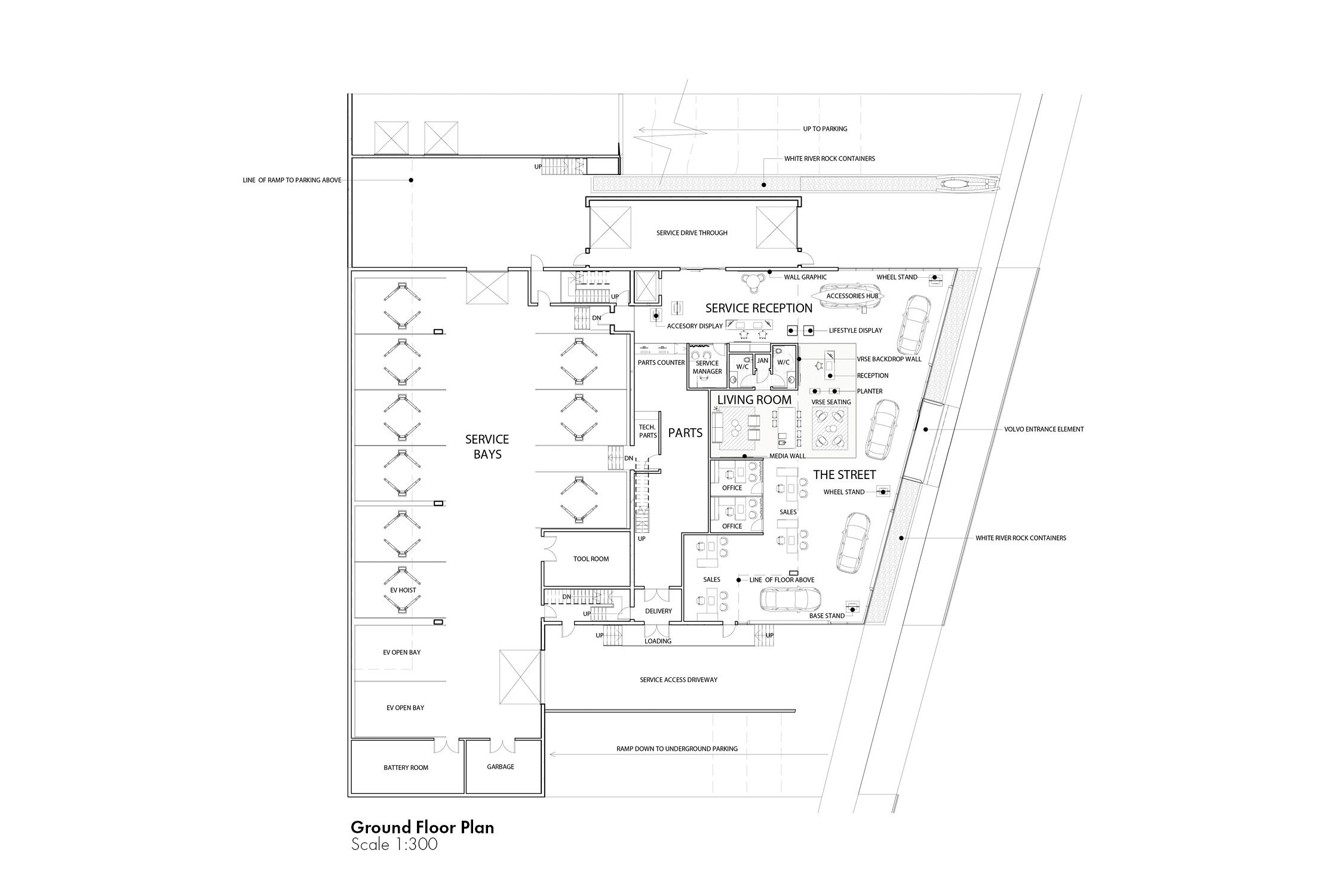
Volvo Facility
Commercial
2023
As a Junior Designer at R.H Carter Architects, I played a crucial role in developing Drawing Sets for automotive facilities, including site plans, floor layouts, elevations and 3D renderings. I also tackled the design of the VRSE (Volvo Retail Sustainability Experience) Information Stand, replacing the original ”Ice Berg” Sculpture from Sweden within the Volvo Program.




VRSE Stand Proposal